| Nr lokalu | Cena | Powierzchnia | Plan |
|---|---|---|---|
| B7L1 | 780 000 | 70,57 | |
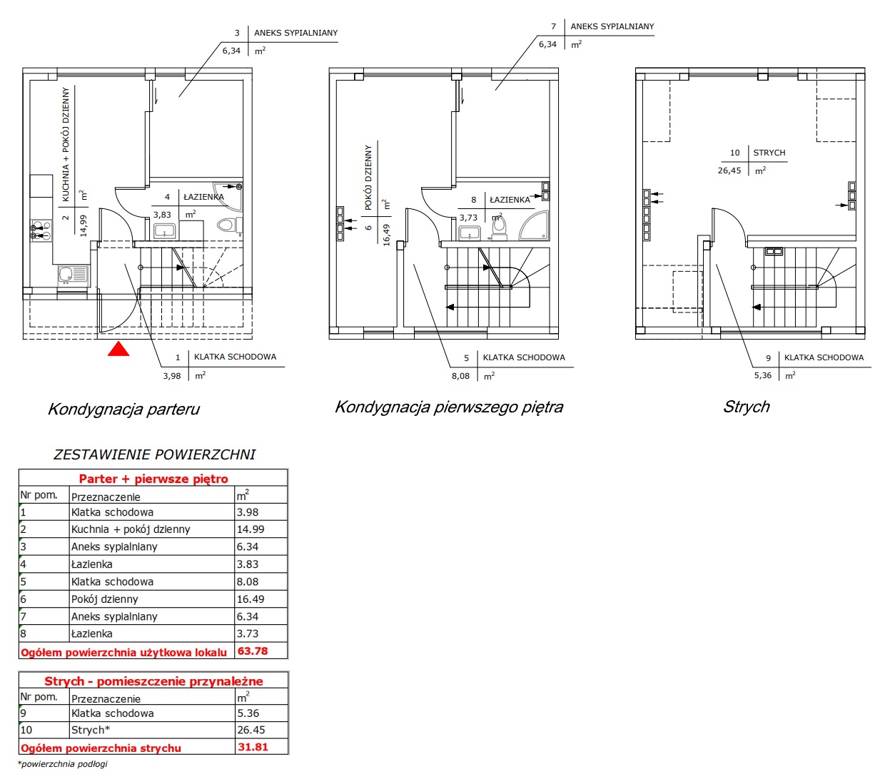
| B4L1 | 880 000 | 63,78 | |
| B6L1 | 880 000 | 63,78 | |
| B1L1 | 1 000 000 | 83,25 | |
| B1L2 | 1 000 000 | 83,25 |
Odkryj wyjątkową ofertę dwupoziomowych apartamentów z przestronnym strychem, przydomowym ogródkiem i dedykowanymi miejscami parkingowymi.
Te bezczynszowe mieszkania, które cechuje wysoki standard wykonania, zaprojektowane są w taki sposób, aby minimalizować koszty wykończenia. Każde mieszkanie jest wyposażone w urokliwy ogródek z trawnikiem i systemem automatycznego podlewania, a także utwardzone podjazdy oraz wyznaczone miejsca parkingowe. Dodatkowo, dbając o ekologię, posiadają ładowarki dla samochodów elektrycznych. To nowoczesne osiedle zapewnia poczucie bezpieczeństwa i spokoju, tworząc kameralną atmosferę. Znajduje się w doskonałej lokalizacji, a za projekt odpowiada sprawdzony deweloper.
Dla lokali B4L1 oraz B6L1
Dzięki niezależnej klatce schodowej możliwe jest stworzenie trzech osobnych kawalerek w ramach tego apartamentu.
Dla lokali B1L1 oraz B1L2
Na parterze tych apartamentów deweloper daje możliwość stworzenia przestrzeni na lokale usługowe, aby zapewnić dodatkowe możliwości funkcjonalne i komercyjne.
Stan deweloperski o podwyższonym standardzie:
• tynki gipsowe • wylewki • wysokiej jakości energooszczędne okna • instalacja CO z kotłem gazowym • ogrzewanie podłogowe • instalacja WOD-KAN • instalacja elektryczna i teletechniczna z pełnym osprzętem • ładowarki do samochodów elektrycznych • urządzone podjazdy i miejsca postojowe • zagospodarowane ogródki • ogrodzenie • domofon i brama automatycznie sterowana • indywidualne przyłącze do wodociągu i kanalizacji miejskiej, gazu i prądu.
Świetna lokalizacja:
Legionowo oferuje wyjątkową lokalizację, która zapewnia mieszkańcom doskonałą dostępność transportu publicznego oraz szybkie połączenia kolejowe. Dzięki linii SKM podróż do Warszawy zajmuje zaledwie 20 minut, a do Lotniska Okęcie oraz Lotniska Modlin – odpowiednio 60 i 35 minut. Ponadto, podróż samochodem do Centrum Warszawy trwa około 30 minut. Infrastruktura Legionowa to również szeroki wachlarz usług handlowo-usługowych, obejmujący sklepy, galerie handlowe z kinem, targowiska miejskie, kawiarnie, restauracje oraz placówki oświatowe, apteki, przychodnie i szpital. Dodatkowo, w pobliżu znajdują się obiekty sportowe i rekreacyjne, takie jak baseny, hale sportowe oraz malownicze ścieżki rowerowe. Nieopodal znajduje się również Zalew Zegrzyński oraz Lasy Jabłonowskie, zapewniając mieszkańcom wiele możliwości spędzania czasu na świeżym powietrzu i w otoczeniu natury.
.jpg)
Planowany termin zakończenia inwestycji – marzec 2025r.
Z przyjemnością prezentujemy Państwu wyjątkowe nieruchomości dostępne jedynie w ofercie off market. Tych inwestycji nie znajdziecie Państwo na żadnych portalach. Zapraszamy do wstępnego zapoznania się z naszą ofertą, a po więcej informacji prosimy umówić się na spotkanie z naszą agentką.
Dobrawa Lenda
Oddział Legionowo
790 606 608